e-mail: jeanbernard@jbfrenchhouses.co.uk Tel(UK): 02392 297411 Mobile(UK)/WHATSAPP: 07951 542875 Disclaimer. All the £ price on our website is calculated with an exchange rate of 1 pound = 1.138945133163301 Euros

For information : the property is not necessarily in this area but can be anything from 0 to 30 miles around. If you buy a property through our services there is no extra fee.

PLUX1949961 Ref : PLUX1949961

PLIBOUX Deux-Sevres

173000.0 Euros

(approx. £151894.93766)

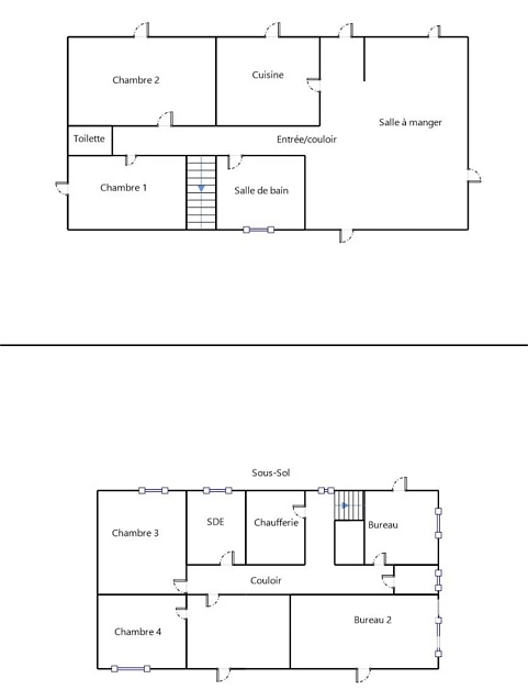
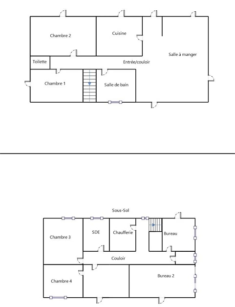
Detached breezeblock and tiled property(175 sqm), built in 1980, situated in a rural spot in a peaceful setting, in the area of Sauze Vaussais, with a garden area of 3 943 sqm and a terrace. Heating : heat exchange central heating system(installed in 2023) and wood. Loft insulation(2021). Garage(50 sqm). Re-wiring and septic tank to update. DPE : B - GES : A.

Basement : 3 bedrooms(10;12;14 sqm), office(16 sqm), shower room with a sink and a toilet, boiler room/laundry, cellar. Ground floor : entrance, large living room/lounge(49 sqm) with a fireplace and tiled flooring, kitchen(12 sqm) with units and tiled flooring, 2 bedrooms(10;12 sqm) with laminate flooring, tiled bathroom with a sink, toilet.

A B C D E F G H I J K L M N O P Q R S T U V W X