e-mail: jeanbernard@jbfrenchhouses.co.uk Tel(UK): 02392 297411 Mobile(UK)/WHATSAPP: 07951 542875 Disclaimer. All the £ price on our website is calculated with an exchange rate of 1 pound = 1.138945133163301 Euros

For information : the property is not necessarily in this area but can be anything from 0 to 30 miles around. If you buy a property through our services there is no extra fee.

PLUX1949475 Ref : PLUX1949475

PLIBOUX Deux-Sevres

45000.0 Euros

(approx. £39510.2439)

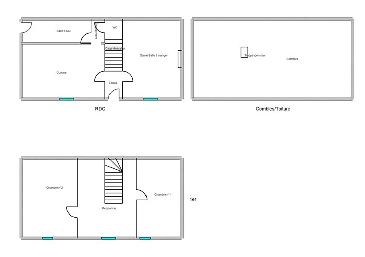
Stone and tiled property(100 sqm), situated in a rural spot in a peaceful setting, in the area of Rom, with a garden area of 460 sqm. Heating : wood(used to heat the water). Double glazing. Barn(64 sqm) attached, with a roof in poor condition. DPE : F - GES : B. Works needed : new kitchen and bathroom, modernisation and decoration. The barn is attached to another property in the back.

Partly Habitable

Ground floor : entrance with a staircase, lounge(30 sqm) with a fireplace, a wood burner, and exposed beams, kitchen(21 sqm) with exposed beams, hallway, shower room with a sink and toilet. First floor : landing with wood flooring, 2 bedrooms(20;20 sqm) with wood flooring. Second floor : loft space.