e-mail: jeanbernard@jbfrenchhouses.co.uk Tel(UK): 02392 297411 Mobile(UK)/WHATSAPP: 07951 542875 Disclaimer. All the £ price on our website is calculated with an exchange rate of 1 pound = 1.1688200149487404 Euros

For information : the property is not necessarily in this area but can be anything from 0 to 30 miles around. If you buy a property through our services there is no extra fee.

PLUX1865500 Ref : PLUX1865500

PLIBOUX Deux-Sevres

273000.0 Euros

(approx. £233568.89556)

Detached breezeblock and tiled property(199 sqm), lies in the countryside in a peaceful setting, in the area of Brux, with an enclosed wooded land area of 1.48 acres(6 018 sqm) with a swimming pool(5 x 11 meters) with a cover. Solar shower. Heating : electric(also used to heat the water), "air pulse" and wood. Double glazing. Septic tank will need updating. Shed(11 sqm) with a sink. Bread oven. Open barn. Barn/workshop(55 sqm). Lean-to(100 sqm). Shed(50 sqm). DPE D - GES : A.

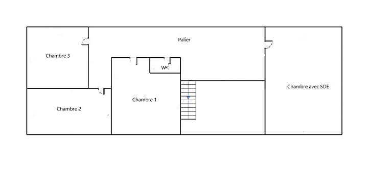
Ground floor : large fitted kitchen(35 sqm) with tiled flooring and an eating area, living room(38 sqm) with tiled flooring and a staircase, bedroom(11 sqm), dressing room(10 sqm), tiled bathroom with a bath, shower, sink and a toilet. First floor : landing with laminate flooring, master bedroom with laminate flooring, a sloping ceiling and cupboards and an ensuite shower, sink and a toilet, 3 bedrooms(19;14;18 sqm) with laminate flooring sloping ceilings and cupboards, toilet.

A B C D E F G H I J K L M N O P Q R S T U V W X