e-mail: jeanbernard@jbfrenchhouses.co.uk Tel(UK): 02392 297411 Mobile(UK)/WHATSAPP: 07951 542875 Disclaimer. All the £ price on our website is calculated with an exchange rate of 1 pound = 1.1688200149487404 Euros

For information : the property is not necessarily in this area but can be anything from 0 to 30 miles around. If you buy a property through our services there is no extra fee.

PLUX1847816 Ref : PLUX1847816

PLIBOUX Deux-Sevres

178500.0 Euros

(approx. £152718.12402000002)

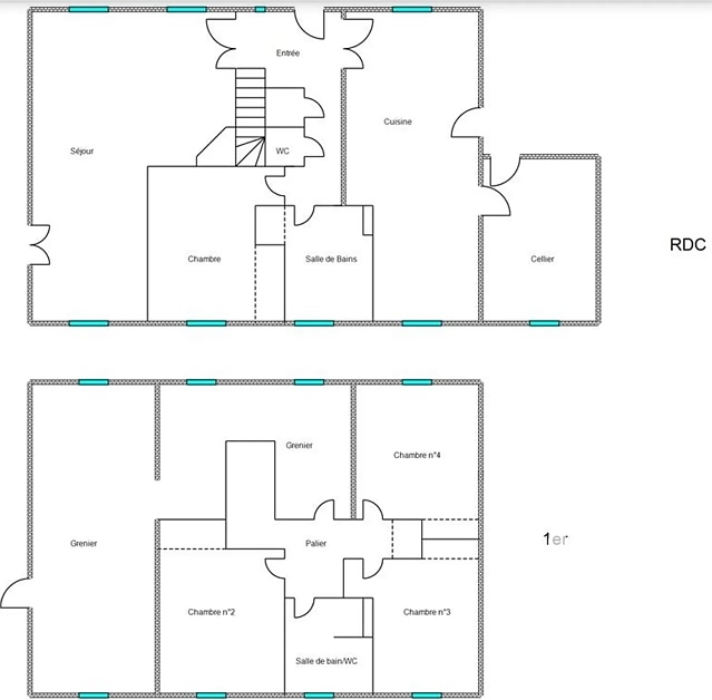
Detached stone and tiled property(137 sqm), built in 1985, lies in the countryside in a peaceful setting, in the area of Chaunay, with a land area of 14.02 acres(56 778 sqm) split into 3 plots and a terrace. Heating: wood. Single glazing. Septic tank will need updating. Ancient house(50 sqm) to renovate with a fireplace. Old goat farm. Barn(600 sqm) attached.

Ground floor : entrance(9 sqm) with tiled flooring and a staircase, kitchen(27 sqm) with tiled flooring(units needed), living room(33 sqm) with a fireplace and tiled flooring, bedroom(12 sqm), tiled bathroom with a sink, toilet, store room. First floor : landing, 3 bedrooms(11;11;12 sqm), tiled bathroom with a sink and a toilet, loft space to convert,

A B C D E F G H I J K L M N O P Q R S T main