e-mail: jeanbernard@jbfrenchhouses.co.uk Tel(UK): 02392 297411 Mobile(UK)/WHATSAPP: 07951 542875 Disclaimer. All the £ price on our website is calculated with an exchange rate of 1 pound = 1.1688200149487404 Euros

For information : the property is not necessarily in this area but can be anything from 0 to 30 miles around. If you buy a property through our services there is no extra fee.

PLUX1804097 Ref : PLUX1804097

PLIBOUX Deux-Sevres

80000.0 Euros

(approx. £68445.09760000001)

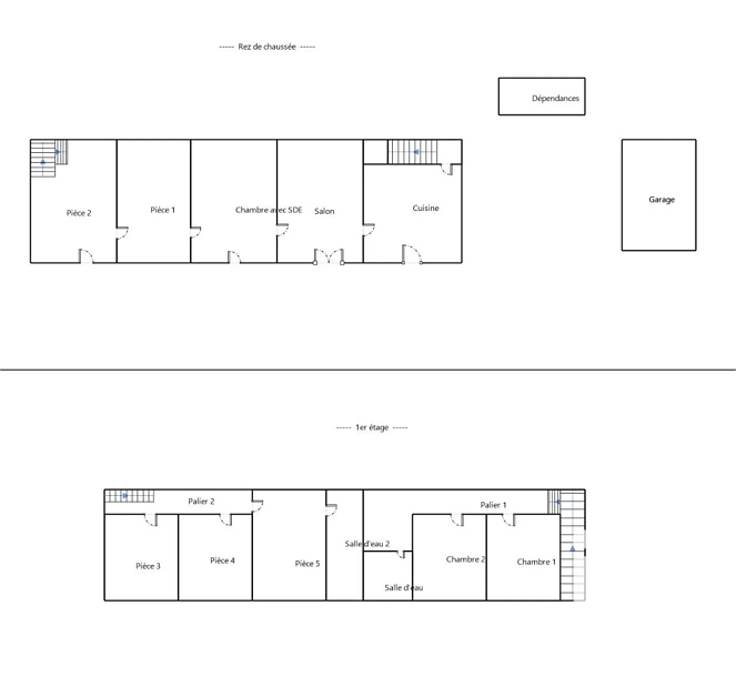
Semi-detached stone and tiled property(172 sqm) in 2 parts, situated on the edge of a village not too far from the shops, in the area of SAUZE VAUSSAIS, with a garden area of 3 329 sqm. Heating : gas. Single glazing. Connected to the mains drainage. Double garage. Workshop. DPE : E - GES : E.

1st part(102 sqm) :

Ground floor : kitchen(20 sqm) with tiled flooring and exposed beams, living room(22 sqm) with tiled flooring. First floor : landing, 2 bedrooms(14;14 sqm) with wood flooring and sloping ceilings, tiled bathroom with a sink and a toilet.

2nd part : to renovate

Comprising of : living room with a fireplaced and exposed beams, kitchen with a staircase and exposed beams, hallway with wood flooring, 2 bedrooms with wood flooring, shower room with a sink and a toilet.

A B C D E F G H I J K L M N O P Q R S T