e-mail: jeanbernard@jbfrenchhouses.co.uk Mobile(UK)/WHATSAPP: 07951 542875 Disclaimer. All the £ price on our website is calculated with an exchange rate of 1 pound = 1.1546815570705284 Euros

For information : the property is not necessarily in this area but can be anything from 0 to 30 miles around. If you buy a property through our services there is no extra fee.

0 Ref : VENT86924139

CHEZ VÉCANT Vienne

210000.0 Euros

(approx. £181868.3244)

Detached stone and tiled "Maison Bourgeoise" property(161 sqm), lies in the countryside in a peaceful setting, in the area of Sommieres du Clain, with a land area of 3.60 acres(14 584 sqm). Open shed. Garage. Various outbuildings including 6 sheds. refreshing needed.

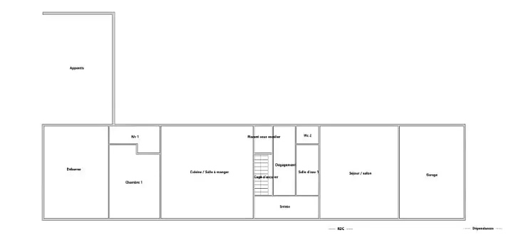
Ground floor : entrance(6 sqm), lounge/living room(28 sqm) with a wood burner, stone flooring and exposed beams, kitchen(29 sqm) with wood flooring, bedroom(12 sqm) with wood flooring, toilet with tiled flooring and a washbasin, tiled shower room(4 sqm) with a washbasin, toilet, store room(22 sqm). First floor : large landing(65 sqm) with a staircase, landing(15 sqm), 2 large bedrooms(20;28 sqm) with wood flooring and exposed beams, tiled shower room with a washbasin, toilet. Second floor : loft space(82 sqm) which is boarded.

A B C D E F G H I J K L M N O P Q R main