e-mail: jeanbernard@jbfrenchhouses.co.uk Tel(UK): 02392 297411 Mobile(UK)/WHATSAPP: 07951 542875 Disclaimer. All the £ price on our website is calculated with an exchange rate of 1 pound = 1.138945133163301 Euros

For information : the property is not necessarily in this area but can be anything from 0 to 30 miles around. If you buy a property through our services there is no extra fee.

0 Ref : AVETD7B2AA3B

Naillat Creuse

89500.0 Euros

(approx. £78581.48509)

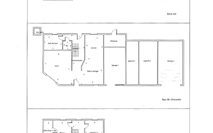
Detached stone and tiled property(155 sqm), situated on the edge of a village, 8 minutes from the shops, in the area of BERSAC SUR RIVALIER, with an enclosed garden area of 964 sqm and a terrace. Heating : central and wood. Garage. Cellar. DPE : F - GES : F. Modernisation and decoration needed. The house is 8n minutes drive from Bessines sur Gartempe and the shops.

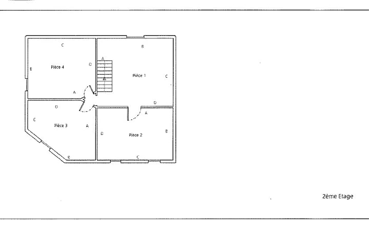
Basement : cellar with a cement floor. Ground floor : entrance with tiled flooring and a staircase, kitchen with units and laminate flooring, lounge/dining room(26.24 sqm) with an insert fireplace and tiled flooring, tiled bathroom with a sink and a toilet. First floor : landing with laminate flooring, 3 bedrooms with laminate flooring, tiled shower room with a sink, toilet. Second floor : landing, 2 bedrooms with lino flooring and sloping ceilings, 2 loft spaces.

A B C D E F G H I J K L M N O P Q R S T U V W